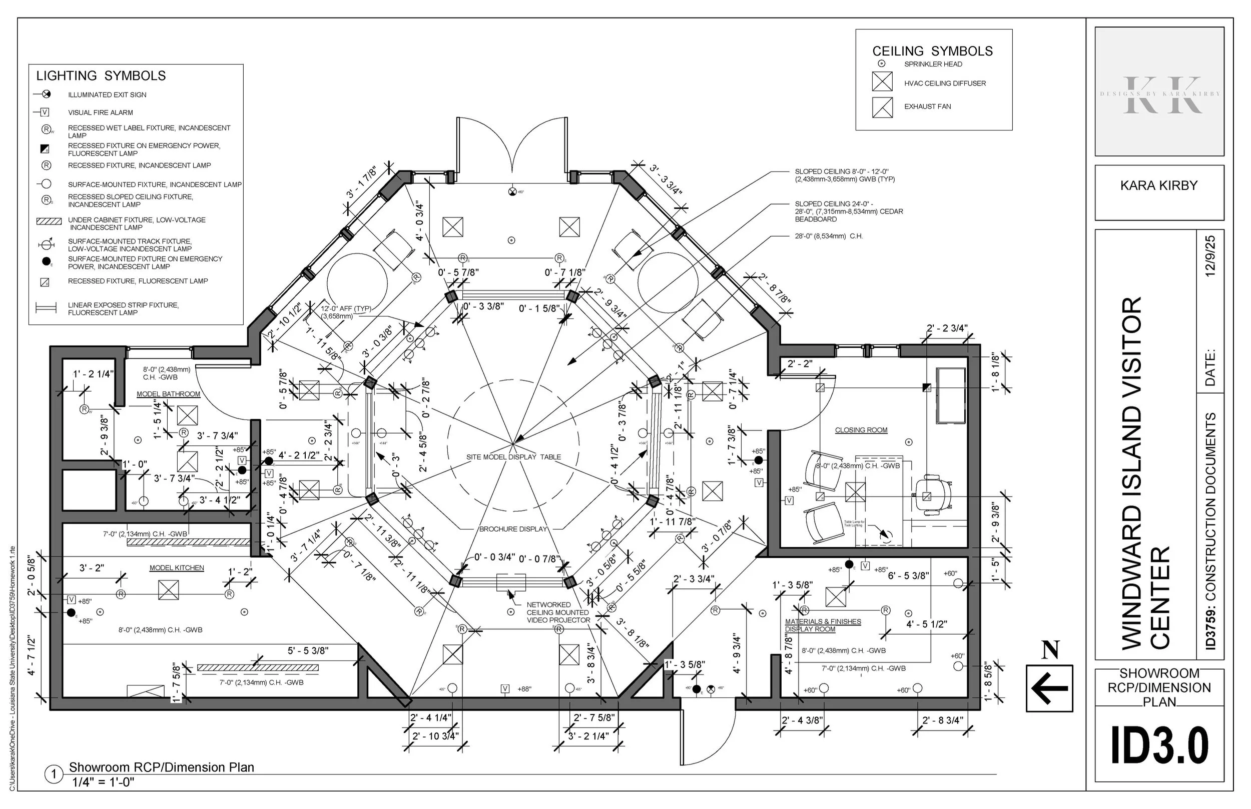
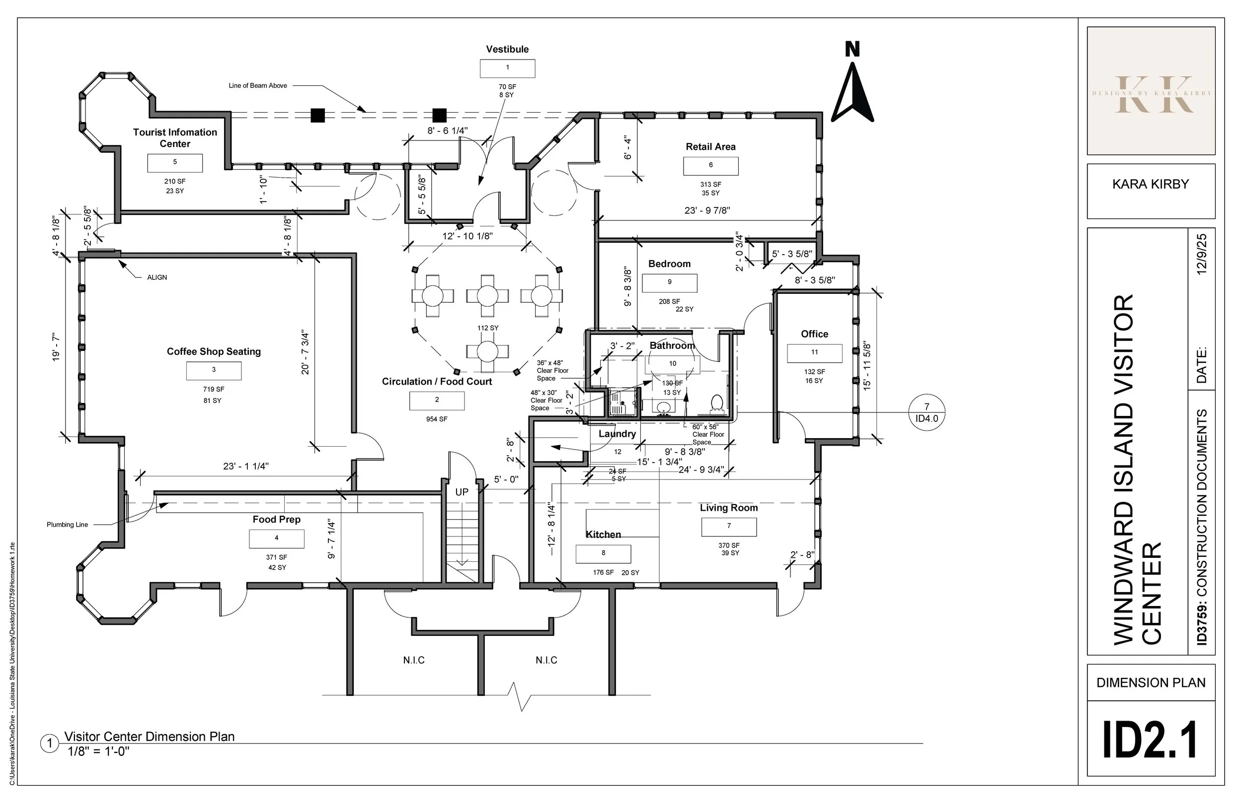
Construction Documents

Over the course of the semester, I developed a set of construction documents for an architectural and interior space. I am now able to contribute to a production of interior contract documents including drawings, detailing, schedules, and specification formats appropriate to project size and scope.

Programs used: Revit

Next
Next

Steelcase NEXT Student Competition